Description
- New Build
- Shared Ownership
- Two Bedrooms
- Allocated Parking
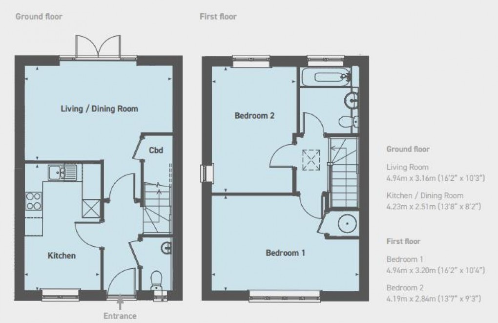
Brand New Two Bedroom House available for shared ownership with Stonewater Housing. Phillip Mann estate agents are proud to present this collection of new two and three bedroom houses for shared ownership in Bishops Lane, Ringmer. These new homes offer a thoughtfully designed, spacious interior layout and have been designed around sustainability. All homes will benefit from a high energy-efficient rating, an electric vehicle charging point, an air source heat pump and thermally efficient windows and doors. Along with solar PV panels on the roof! Ringmer is a large village in East Sussex, three miles from Lewes. There are local shops, places to eat, GP surgery, pharmacy and a dentist. The village has a strong sense of community and Ringmer offers excellent access to the A26 and there are two nearby railway stations at Lewes and Cooksbridge. From Lewes, Brighton is 17 minutes by train. For further travel, Gatwick airport is approximately 45 minutes' drive away. Mid Terrace - 40% share: £148,000 Open market value: £370,000 Monthly Rent: £508.75 Service charge: £81.20 per month End Terrace - 40% share £150,000 Open market value: £375,000 Monthly Rent: £515.62 Service charge: £81.47 For further information please call 01273 517517.
Floorplan
To discuss this property call our Newhaven branch:
Market your property
with Phillip Mann
Book a market appraisal for your property today. Our virtual options are still available if you prefer.