Development Site, South Way, Newhaven
Prices From £600,000

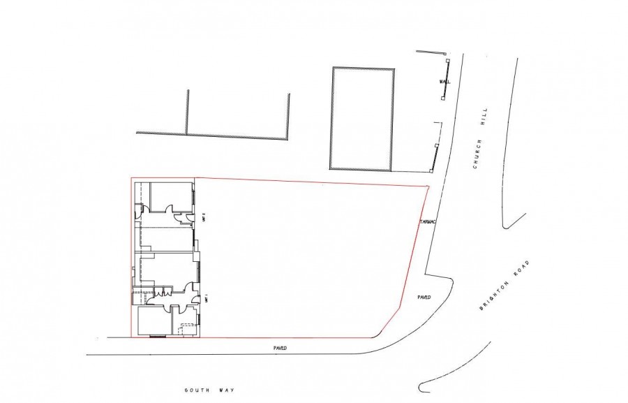
Phillip Mann estate agents are delighted to offer this development site. The site is located at the A26/A259 junction in the centre of Newhaven, immediately opposite the pedestrianised High Street. The property comprises a cleared site for the development of a new four-storey block consisting of 13 flats and 1 commercial shop/office unit on this gateway site into Newhaven. Planning permission is expected shortly on the planning application for 13 flats and office space, under reference LW/20/0360 on the Lewes and Eastbourne Borough Council's planning website - https://www.lewes-eastbourne.gov.uk/planning-and-building-control/planning-applications/search-and-view-planning-applications/

Gallery





Properties Included Within Development Site, South Way, Newhaven

South Way, Newhaven

£600,000

Phillip Mann estate agents are delighted to offer this development site. The site is located at the A26/A259 junction in the centre of Newhaven, immediately opposite the pedestrianised High Street. The property comprises a cleared site for the...



How Much is Your Property Worth?

How Much is Your Property Worth?

Not sure how much your property is worth? Request a free, no obligation valuation for your property.

Book a valuation